New coffee shop and sushi bar to open in Oakham
By Steve Thompson - Local Democracy Reporter 19th Feb 2026
A new coffee shop and sushi bar could open in Oakham if plans are approved.
The venue – set to be called Buddha Bar & Brew – will operate as a coffee shop during the day and a wine bar from 5pm to 11pm, according to planning documents.
It will serve sushi, salads, pastries and cakes throughout the day – although the plans say there will be no cooking on site.
The café-bar will be based at Burley Corner in Oakham in a vacant retail unit below Sarpech Indian restaurant.
A consultation into the proposal has gone live with members of the public invited to have their say via the Rutland County Council planning portal.
Companies House records reveal the new venture will be known as Buddha Bar & Brew.
Planning documents submitted by Tanita Vichathum state that a licence to serve alcohol will be sought separately.
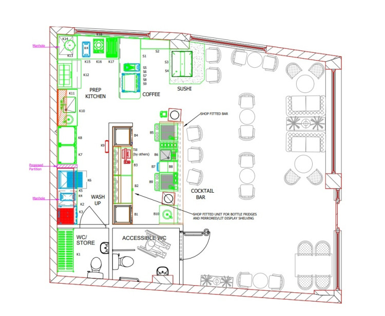
A floor plan for the premises shows a sushi counter, a cocktail bar and a coffee station – plus space for around 25 customers.
The consultation will come to an end on March 9.
A decision on the planning application to change the use of the building from a retail unit to a coffee shop and wine bar is expected later next month.

CHECK OUT OUR Jobs Section HERE!
oakham vacancies updated hourly!
Click here to see more: oakham jobs
Share: